[vc_row][vc_column][vc_column_text]Để xây dựng một căn nhà bạn cần các khoản:
- Xin giấy phép xây dựng
- Phá dỡ nhà cũ (nếu có)
- Gia cố móng (nếu có)
- Thiết kế nhà phố tại Đà Nẵng
- Thi công nhà phố tại Đà Nẵng
- Giám soát (nếu có)
- Thi công nội thất Đà Nẵng
Hiện này có 2 cách tính cơ bản đó là tính theo diện tích xây dựng và tính theo dự toán.

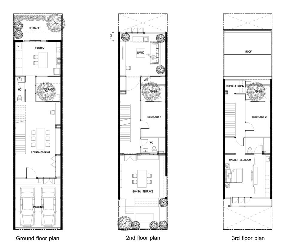
Lựa chọn phong cách thiết kế nhà phố 3 tầng tại Đà Nẵng
Thiết kế nhà phố 3 tầng tại Đà Nẵng chúng tôi đã suy nghĩ và tính toán sao cho thật kỹ để gia chủ có được không gian sống hiện đại và thư giãn nhất. Cuối cùng chúng tôi cũng lựa chọn giải pháp là thiết kế ngôi nhà 3 tầng theo phong cách hiện đại bởi điều này sẽ giúp không gian trở nên thông thoáng và rộng rãi hơn.
Bằng việc sử dụng gam màu trắng làm tone màu chủ đạo giúp không gian ngôi nhà trở nên sạch sẽ và thanh lịch hơn. Bên cạnh đó, màu trắng cũng rất dễ phối màu với các đồ nội thất gia dụng khác và giúp chúng trở nên nổi bật hơn.
Xem thêm: Bộ sưu tập mẫu thiết kế nhà phố 2 tầng đẹp tại Đà Nẵng

Thiết kế phòng làm việc
Phòng làm việc là nơi để gia chủ tập trung giải quyết công việc vì vậy cần được thiết kế thỏa mái và tiện lợi. Chúng tôi đã sử dụng cánh cửa kính lớn thay cho vách ngăn thông thường để tạo không gian mở. Điều này không chỉ giúp căn phòng trở nên sáng sủa, rộng rãi hơn mà giúp gia chủ cảm thấy thư giãn và có cảm hứng làm việc hơn.

Không gian làm việc đặt gần khu vườn đầy cây xanh sẽ giúp gia chủ cảm thấy thư giãn, kích thích sự sáng tạo vô hạn của bạn.

Mời bạn chiêm ngưỡng:


Thiết kế phòng bếp cho nhà phố 3 tầng
Phòng bếp là không gian quan trọng của ngôi nhà. Đây là nơi mà những người nội trợ thườn trổ tài nấu nướng và cũng là nơi các thành viên trong gia đình quay quần bên nhau để thưởng thức những bữa ăn. Vì vậy thiết kế phòng bếp cho nhà phố 3 tầng cần tính toán thật kỹ về các bố trí nội thất, hướng, …để làm sao mang đến không gian đẹp và tiện dụng nhất.
Với không gian phòng bếp, chúng tôi vẫn sử dụng gam màu trắng làm tone màu chủ đạo điều này sẽ giúp cho không gian trở nên sạch sẽ, thông thoáng hơn. Khi mà nhà bếp trông lúc nào cũng sạch sẽ thì sẽ giúp người ăn cảm thấy ngon miệng hơn. Ngoài ra, chúng tôi cũng bố trí 2 đèn chùm phía bên trên để tạo điểm nhấn cho căn phòng.

Mời bạn cùng chiêm ngưỡng một số hình ảnh thiết kế nội thất phòng bếp cho nhà phố 3 tầng:

Thiết kế cầu thang
Cầu thang cũng là một phần quan trọng tạo nên vẻ đẹp thẩm mỹ cho ngôi nhà. Khi thiết kế nhà phố 3 tầng, chúng tôi cũng đã suy nghĩ rất nhiều rằng việc nên lựa chọn vật liệu gì. Cuối cùng chúng tôi cũng sử dụng chất liệu màu gỗ để làm cầu thang. Bởi chất liệu này không ảnh hưởng đến kiến trúc tổng quan của ngôi nhà, độ bền tốt. Đồng thời tạo cảm giác ấm cúng hơn cho ngôi nhà trong khi đó vẫn giữ được sự sang trọng.


Thiết kế phòng khách đơn giản tuyệt đẹp
Phòng khách là không gian quan trọng và được xem là bộ mặt của ngôi nhà. Thiết kế phòng khách, chúng tôi đã sử dụng phong cách hiện đại tối giản. Từng chi tiết phức tạp, cầu kỳ đều bị lược bỏ giúp không gian trở nên nhẹ nhàng và thông thoáng hơn. Các vật dùng đồ nội thất như bộ ghế sofa, chiếc bàn tròn, chậu cây…đều được bố trí một cách khoa học và tiện dụng. Điều này giúp tạo cảm giác đồ đạc trong phòng khách là vừa đủ, không nhiều quá mà cũng không ít quá.

Thiết kế nội thất phòng khách bổ sung thêm một số những chậu cây tạo không gian xanh cho căn phòng, giúp bạn và những vị khách được cảm thấy thư giãn và thỏa mái hơn khi nói chuyện.














Hy vọng với mẫu thiết kế nhà phố 3 tầng tại Đà Nẵng mà The House vừa giới thiệu ở trên sẽ giúp bạn có thêm ý tưởng cho không gian mới của mình. Nếu bạn gặp khó khăn trong quá trình triển khai thiết kế và thi công nhà phố, đừng ngần ngại mà hãy gọi ngay cho The House, các kiến trúc tài ba sẽ tư vấn, giải đáp mọi thắc mắc cho bạn.[/vc_column_text][/vc_column][/vc_row]


